ИП Яковлев Д.Ф.
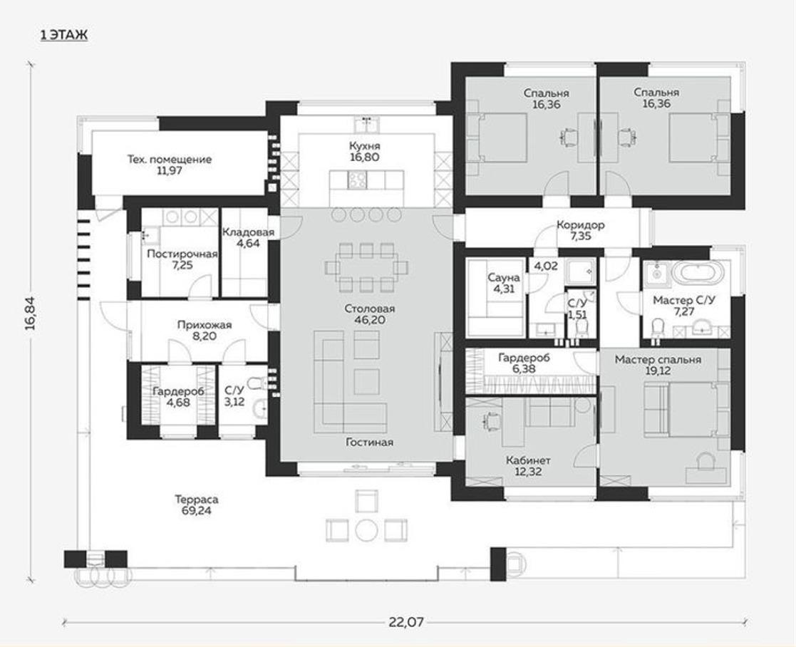
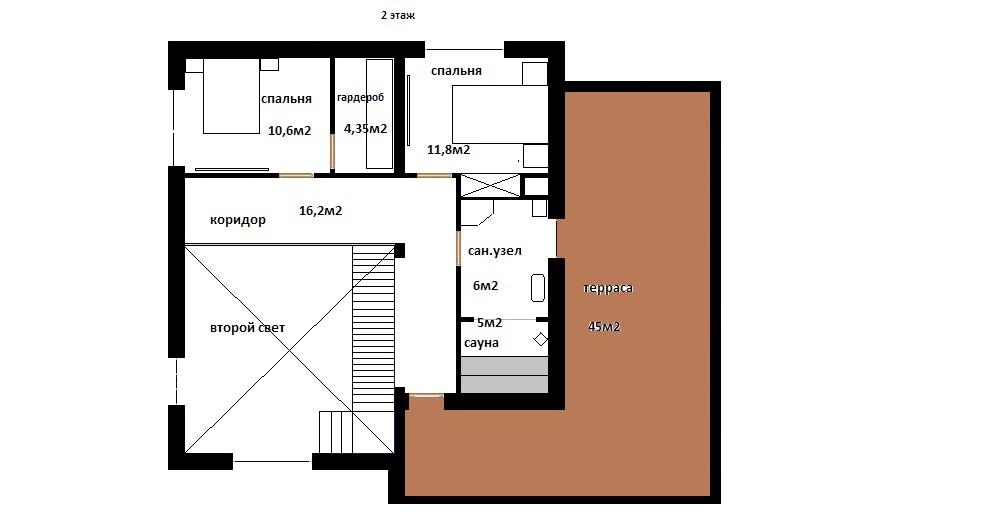
Современные дома площадью 92, 112, 139 и 180 м2
Архитектурно-планировочные решения:
Эти дома сочетают в себе современный минимализм и продуманную эргономику. Здесь несколько спален — отличный вариант для семьи с детьми или тех, кто часто принимает гостей. Кухня-гостиная с панорамным остеклением наполнена светом и кажется ещё более просторной благодаря удачной планировке. Отдельная постирочная, сауна и гардеробные зоны делают быт комфортным и организованным. Терраса, выходящая на участок, расширяет пространство для отдыха и встреч на свежем воздухе.
Фишки проекта:
• Гибкость планировки, которая позволяет адаптировать дом под разные потребности семьи.
• Продуманное разделение общественной и приватной зон для максимального удобства.• Высокая энергоэффективность благодаря современным технологиям строительства.
Состав проекта:
Фундамент
Свайно-ростверковый с монолитным ж.б. перекрытием
Стены несущие фасадные
Газобетонные блоки Bonolit 400мм D=400кг/м3
Внутренние несущие стены
Газобетонные блоки Bonolit 250мм D=500кг/м3
Перегородки
Газобетонные блоки Bonolit 100мм D=500кг/м3
Стропильная система
Деревянные антисептированные конструкции
Утепление кровли
ТеплоКНАУФ 200мм
Кровельное покрытие
Металлочерепица с системой снегозадержания
Окна
REHAU Delight Design с теплым стеклопакетом
Дверь входная
Металлическая временная
Водосточная система
Стальная
Отделка кровельного свеса
Стальные, перфорированные софиты и фигурные лобовые планки
Дымоходы и вент. шахты
Утеплённый стальной короб, обшитый фальцем
В стоимость строительства включено:
• Материалы и инструменты.
• Строительно - монтажные работы.
• Инвентарные и накладные расходы.
Дополнительно предлагаем следующие услуги:
• Чистовая отделка помещений.
• Устройство вентиляции.
• Монтаж систем водоподачи и водоотведения,отопления
• Подключение к центральным коммуникациям
• Устройство террас
• Ландшафтный дизайн.
Цена реализации объекта в категории "с подрядом" (участок + дом):
дома общей площадью 92 м2 - 16 600 000 руб.
дома общей площадью 112 м2 - 18 300 000 руб.
дома общей площадью 139 м2 - 20 500 000 руб.
дома общей площадью 180 м2 - 23 900 000 руб.
Продаются два современных 2х этажных дома : (Проекты серии «Галс-230» и «Галс-240»
Площади участков : 6,02 сотки («Галс-230») и 6,28 соток «Галс-240»
Удалённость от МКАД -45 км
Категория земель – Земли населённых пунктов
Площади домов с террасой – 230 м2 и 240 м2
Центральные коммуникации – газ (по границе участка)
Центральные коммуникации – электричество 7 квт с возможностью увеличения), водоснабжение и канализация (заведены в дом)
Продаются два современных дома : 230 м2 и 240 м2,с прекрасной планировкой, с 3- мя спальнями, с увеличенными дверными проёмами (2,3м), высокие потолки 3, 25м), парящая монолитная лестница, окна в пол делают все помещения светлыми и уютными. В дома заведены все центральные коммуникации: электричество, канализация, водоснабжение. Дома находится на стадии пред чистовой отделки. По периметру участков установлен забор из металлического штакетника. Вокруг домов выполнена бетонная отмостка и заезд. Посёлок находится рядом с большим лесным массивом с грибными местами и рекой Пахрой. На территории коттеджного посёлка осуществляется пропускной режим с круглосуточной охраной, а также регулярным патрулированием. Инфраструктура поселка включает в себя: детскую площадку, спортивную площадку, пруд. В посёлке имеется собственная коммунальная служба – чистка дорог, вывоз мусора, содержание и ремонт всех коммуникаций. Живя за городом Вы получаете возможность московской прописки.
В 5и км находится посёлок Яковлевское с полной инфраструктурой – школы и детские сады (курсирует школьный автобус), поликлиника, крупные сетевые магазины, строительный рынок, полиция и МЧС.
Цена 33.500.000 руб. («Галс-230») и 33.900.000 руб. («Галс-240»)


































Мы выполняем комплексный монтаж инженерных систем в загородном доме:
- Котельные (автоматизированные и с ручным управлением, монтаж дымоходов/вентканалов)
- Вентиляция и кондиционирование (
- Водоснабжение (ввод в дом, обустройство скважин/колодцев, установка насосов, водоочистка, разводка труб внутри дома),
- Радиаторы отопления (секционные, монолитные, панельные, трубчатые, дизайн-радиаторы),
- Теплый пол (на плитах ППС, на матах, на теплопроводных пластинах),
- Электромонтажные работы (ввод в дом, сборка электрощитов, прокладка кабелей, монтаж модульного заземления).

Вы платите за результат, который видите и можете пощупать руками

В течение 1 года бесплатно устраним ваши замечания и претензии

Отсутствие менеджеров. Все консультации вы получаете от мастеров

Экологически чистые материалы, которые не навредят вашему здоровью

Работы начинаются и завершаются вовремя. Без срывов и цейтнотов

Организуем закупку и доставку материалов. Вывезем строительный мусор




Оставляя заявку, вы соглашаетесь на обработку персональных данных